Charmante Maison 3 façades, style fermette – à rénover, jardin clôturé de 1300 m²
Située à proximité immédiate de la Place du village de Thieusies, grands axes routiers, cette maison offre un beau potentiel pour un projet familial dans un cadre idyllique.
🔹 Caractéristiques principales :
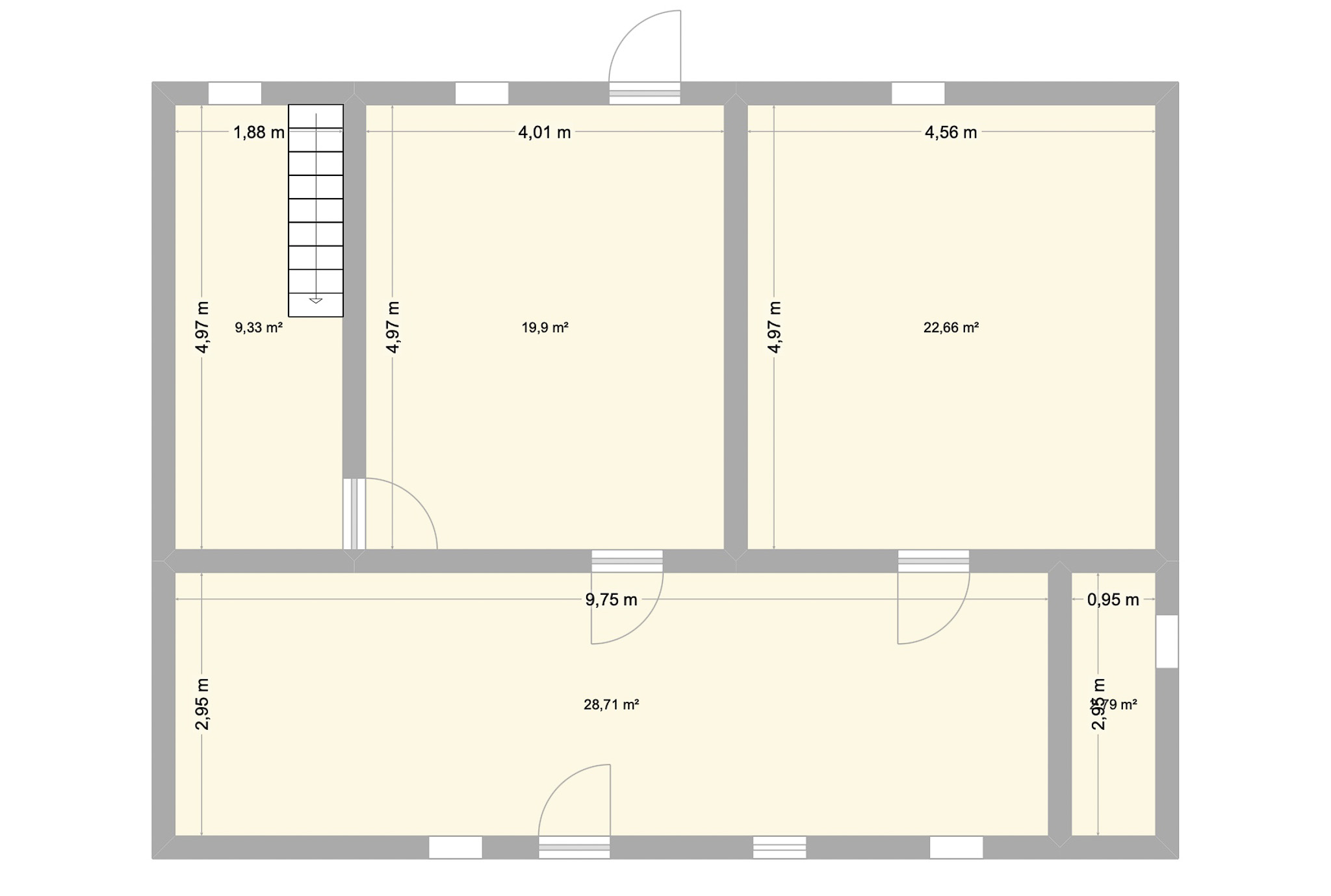
- Surface habitable : 136 m²
- Nombre de chambres : 3
- 1 salle d’eau
- 1 WC
- Jardin : entièrement clôturé et bordé de végétations
- PEB : F n° 20240228007779
- État : à Rénover et rafraichir selon vos goûts et besoins
Je vous invite à découvrir ce bien à travers notre petite vidéo : https://youtu.be/_kQg_pJjYh4 et à trouver les documents nécessaires ; PEB, plans, … https://www.immobilieredomus.be/listings/charmante-maison-3-facades-style-fermette-a-renover-jardin-cloture-de-1300-m%c2%b2/
Ce bien rare combine espace, potentiel et situation privilégiée. Cette maison vous offre de multiples possibilités d’aménagement.
💡 Atouts : Maison de charme dans un cadre idyllique et campagnard pas trop loin des commodités, accès facile aux grands axes
📍 Localisation : Thieusies
👉 Prix attractif compte tenu du potentiel !
Prix : 197.000 €- RC 272 €
📞 Contactez-nous dès aujourd’hui pour organiser une visite et découvrir tout le potentiel de cette propriété unique 0475/ 75.60.58 ou par mail à info@immobilieredomus.be
Pièce-jointes
You need to setup the Yelp Fusion API.
Go into Admin > Real Estate 7 Options > What's Nearby? > Create App

Charmante Maison 3 façades, style fermette – à rénover, jardin clôturé de 1300 m²

